NOTICE: Application to Purchase Original Shore Road Allowance AH-OSRA-005/25
Applicant: Waller
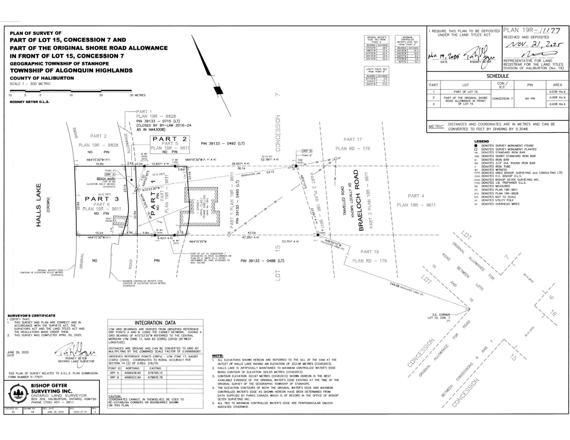
Lot 15, Concession 7, Halls Lake
Geographic Township of Stanhope
WHEREAS the Council of the Corporation of the Township of Algonquin Highlands has declared part of Lot 15, Concession 7, and part of the original shore road allowance lying in front of Lot 15, Concession 7, in the
geographic Township of Stanhope, in the Township of Algonquin Highlands, County of Haliburton, to be surplus.
TAKE NOTICE that the Council of the Municipal Corporation of the Township of Algonquin Highlands proposes to enact a By-Law to stop-up, close and convey to the abutting property owner(s) that part of Lot 15, Concession 7 and part of the original shore road allowance lying in front of Lot 15, Concession 7, described as all and singular that certain parcel or tract of land and premises situate, lying and being in the Geographic Township of Stanhope, in the County of Haliburton and being composed of the following:
FIRSTLY: THAT part of Lot 15, Concession 7, described as Part 1on a Plan deposited in the Registry Office for the Land Titles Division of Haliburton County as Plan 19R-11177.
SECONDLY: THAT part of the original shore road allowance lying in front of Lot 15, Concession 7, described as Part 2 on a Plan deposited in the Registry Office for the Land Titles Division of Haliburton County as Plan 19R-11177.
The proposed By-Law will come before the said Council for consideration at its regular meeting at the Algonquin Highlands Municipal Office, 1123 North Shore Road, on the 15th day of January, 2026 and at that time, the Council will hear in person or by his/her counsel, solicitor or agent any person who claims that his/her land will be prejudicially affected and who applies to be heard. Any person who wishes to be heard by Council regarding this proposed closure must contact the Clerk to schedule a delegation with Council.
Dated: December 23, 2025
Sean O’Callaghan
Planner
Township of Algonquin Highlands
1123 North Shore Rd.
Algonquin Highlands, ON K0M 1S0
Tel: (705) 489-2379
Email: socallaghan@algonquinhighlands.ca


Contact Us
Township of Algonquin Highlands
1123 North Shore Road
Algonquin Highlands, ON
K0M 1S0
705-489-2379
info@algonquinhighlands.ca
Fax: 705-489-3491
Sign up for News and Notices!
Keep up to date with everything happening in Algonquin Highlands by receiving regular updates to your inbox!